EDIFICIO AM80
Edificio de vivienda colectiva, Madrid
Collective Housing Block, Madrid
Arquitectura/Architecture Estudio Juarranz, Angela Juarranz
Equipo/Team Álvaro García
Project Management Commuty
Construcción/Construction Aluminios del Pirineo, Progarca
Pintura/Painting Works Wenceslao
Fotografía/Photographs Miguel Fernández-Galiano
Lugar/Location Madrid
Año/Year 2019
Premios/Awards
Obra catalogada en ARQUIA/PRÓXIMA 2020
Edificio de vivienda colectiva, Madrid
Collective Housing Block, Madrid
Arquitectura/Architecture Estudio Juarranz, Angela Juarranz
Equipo/Team Álvaro García
Project Management Commuty
Construcción/Construction Aluminios del Pirineo, Progarca
Pintura/Painting Works Wenceslao
Fotografía/Photographs Miguel Fernández-Galiano
Lugar/Location Madrid
Año/Year 2019
Premios/Awards
Obra catalogada en ARQUIA/PRÓXIMA 2020
Nuevos modelos de vida
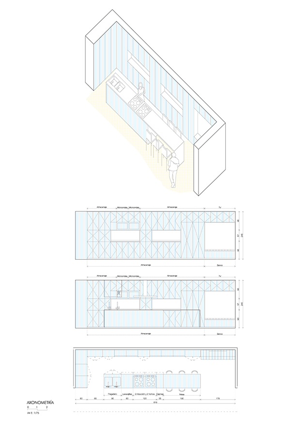
AM80 consiste en la rehabilitación de un edificio de mediados del siglo XX ubicado en el barrio de Chamberí en Madrid. El proyecto recupera dicho bloque residencial para permitir un uso colectivo adaptado a las nuevas demandas, a la vez que respeta el carácter burgués de la arquitectura propia de los distritos más céntricos de la ciudad. La materialización de la reforma se hace eco de esas prácticas innovadoras y sostenibles para adecuar la infraestructura urbana existente a los estilos de vida contemporáneos.
AM80 consiste en la rehabilitación de un edificio de mediados del siglo XX ubicado en el barrio de Chamberí en Madrid. El proyecto recupera dicho bloque residencial para permitir un uso colectivo adaptado a las nuevas demandas, a la vez que respeta el carácter burgués de la arquitectura propia de los distritos más céntricos de la ciudad. La materialización de la reforma se hace eco de esas prácticas innovadoras y sostenibles para adecuar la infraestructura urbana existente a los estilos de vida contemporáneos.